안녕하세요.
기계제도기능사 실기를 연습하고 있는 도중에
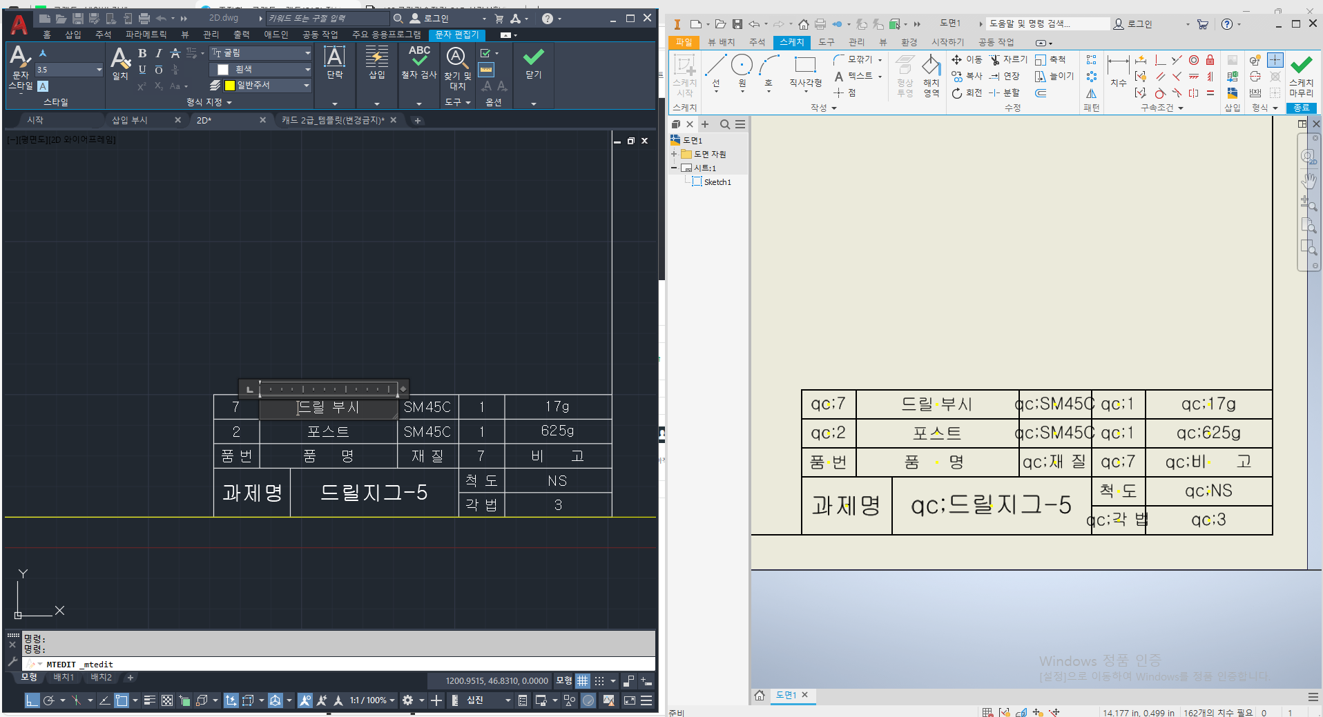
캐드에서 윤곽선이랑 문자를( mt ) 작성해서 전체 복사해서
인벤터 도면으로 붙여넣기를 연습을 하고 있었습니다.
어느 순간부터 캐드에서 인벤터로 붙여넣기를 하면 문자들 앞에 qc; 생겼어요.
캐드랑 인벤터 설정 초기화도 해보고 재부팅도 하고 했는데 전처럼
qc; 사라지질 않네요..
현재 문자는 mt로 작성 후 복사해서 explode 사용후
인벤터로 붙여넣기해서 쓰고있습니다…
혹시 없애는 방법을 아시는분 계신가요?…
캐드 -> 인벤터 복사 붙여넣기
공유

MTEXT는 서식코드가 같이 복사되는 경우가 있습니다.
눈에는 안보이는데 복사를 하거나 LISP로 값을 가져오면 그때 나타납니다.
(대표적인예로 CAD-CONNECT-EXCEL로 표를 내보내면 이상한 문자가 붙는 경우가 많습니다.)
아래내용 참고하시어 텍스트 전체를 선택하시고 서식을 제거한다음 동일한 동작 시도해보세요.
이부분이 의심이 가는데 다른문제일수도 있긴합니다…
오! 해결했어요!!! 감사합니다!!